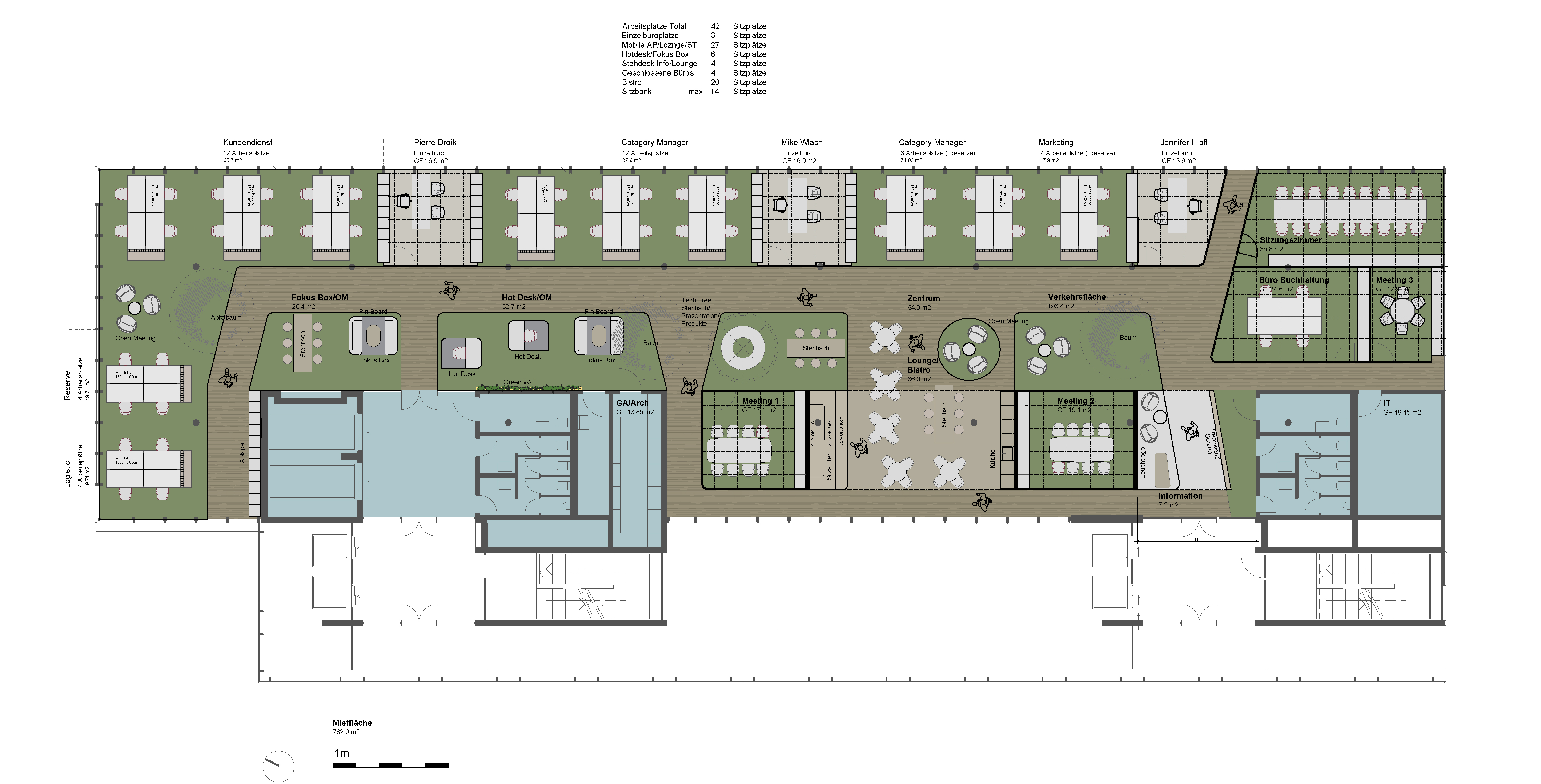
Innenausbau Apfelkiste, neue Büroräumlichkeiten
Leistung
Architektur, Renderings, Baumanagement, Bauleitung
Zettelwerk AG
Projektentwicklung
Architektur
Baumanagement
	
	
Projektentwicklung
Architektur
Baumanagement
