︎
Projekte
About
Kontakt
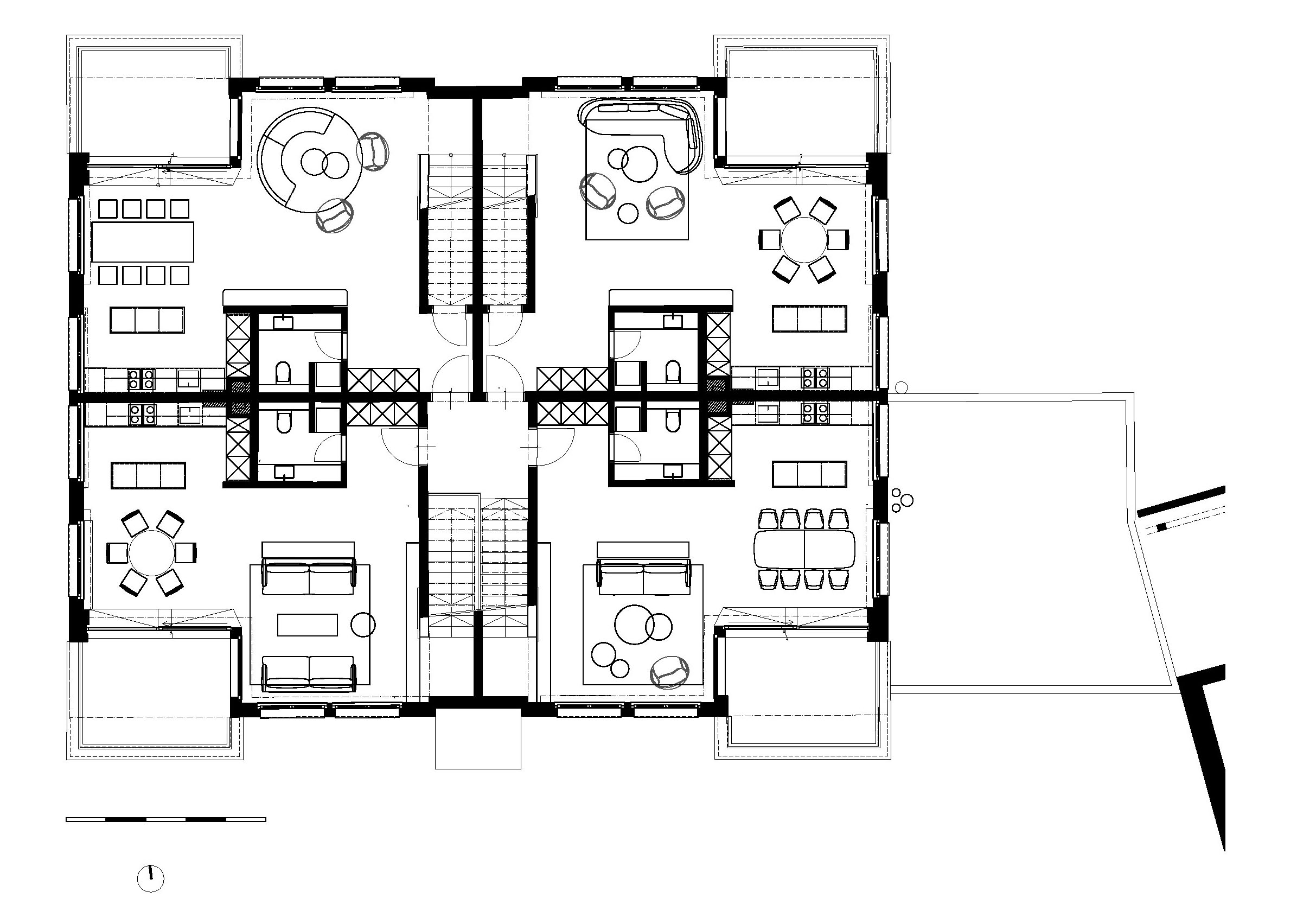
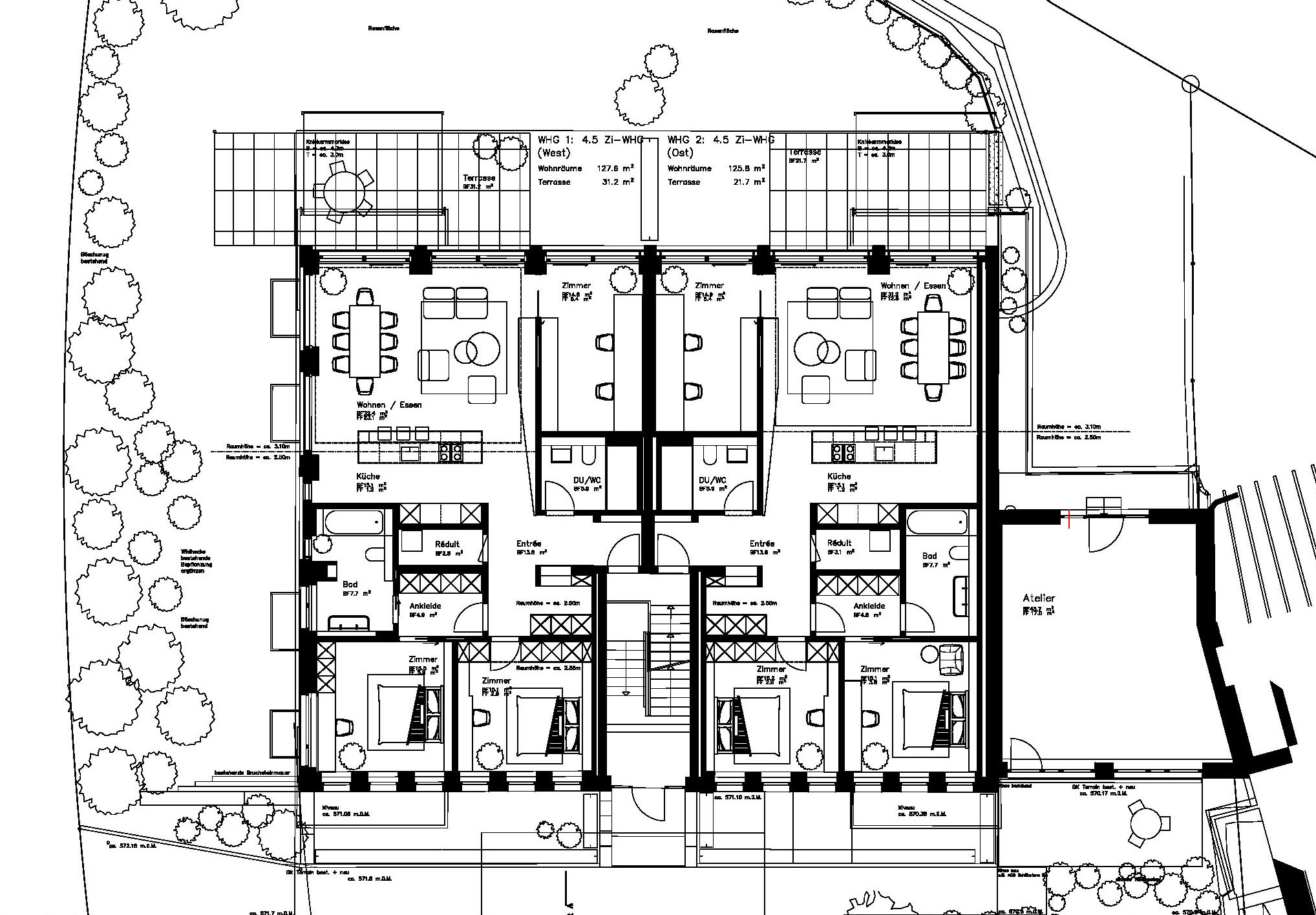
Umbau MFH Rütistrasse 2 8044 Gockhausen
Raumkonzepte und Ausführung WHG EG/1OG/2OG
Leistung
Raumentwicklung, Bauleitung, Visualisierungen für Verkaufsdokumentation,
Ausführung 2024/2025
/
Zettelwerk
AG
Pr
ojektentwicklun
g
Architektur
Baumanagement
Seidenstrasse 27
8400 Winterthur
+41 52 233 00 88
hello@zettelwerk.ch
Copyright by Zettelwerk AG
Impressum
Datenschutz
Running on Cargo