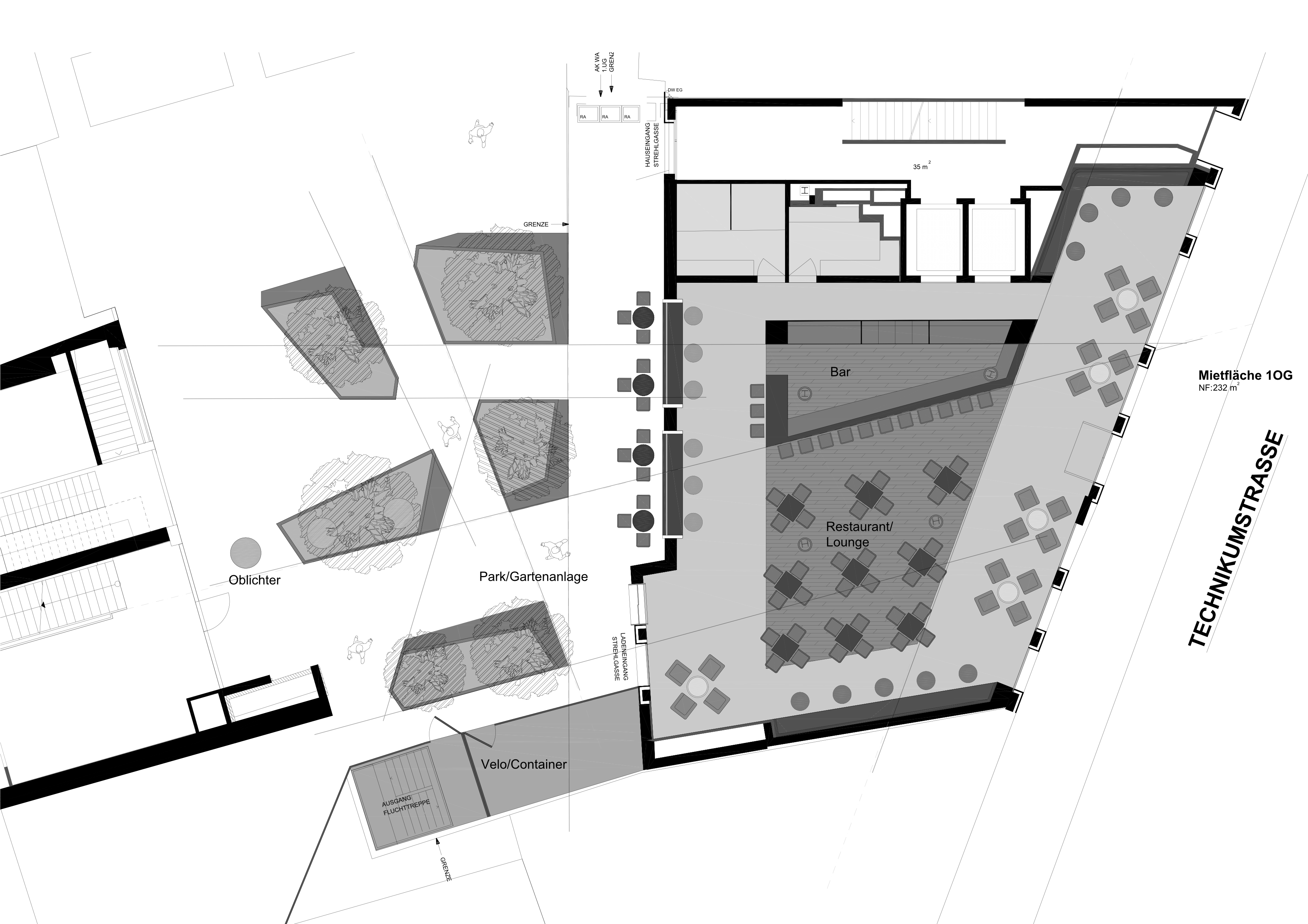
Umbaukonzept Erdgeschoss Geschäftshaus mit Park, Technikumstrasse Winterthur
Leistung
Bauherrenberatung, Architektur, Baumanagement
Zettelwerk AG
Projektentwicklung
Architektur
Baumanagement
Projektentwicklung
Architektur
Baumanagement
